Встраиваемая техника для кухни по оптовым ценам

Машины посудомоечные

Monsher MD 4501
Арт: 76620
Промо
Скидка на комплект Monsher!
Акция
Розничная цена
27 465 р.
В наличии
Склады
Склад (5)
В корзину

Встраиваемая посудомоечная машина Monsher MD 4501

Общие данные
Коллекция High-Tech
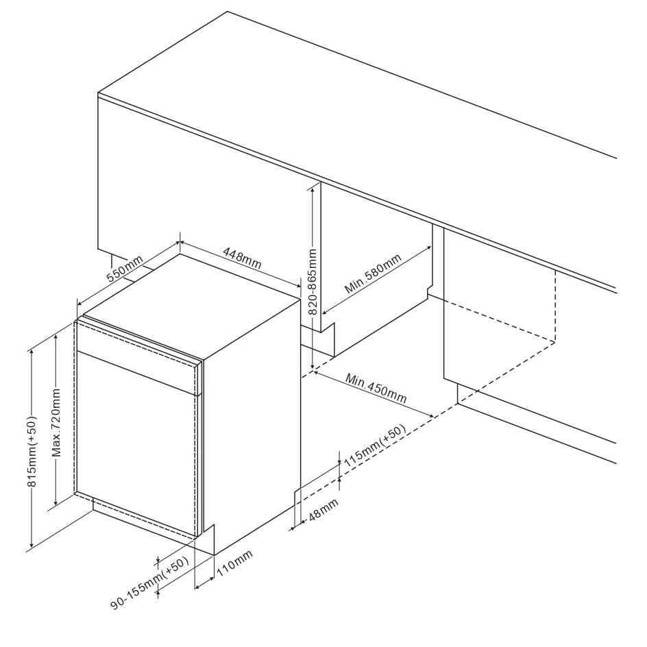
Ширина, см 45
Высота, см 81.5
Глубина, см 55
Тип посудомоечной машины полностью встраиваемая

Основная информация
Загрузка (комплектов посуды) 9
Количество корзин 3
Количество программ 5
Корзина для столовых приборов да
Материал рабочей камеры нержавеющая сталь
Тип сушки конденсационная
Уровень шума, дБ 52
Управление кнопочное
Инверторный мотор нет
Материал панели управления пластик
Цвет LED-дисплея белый
Цвет панели управления серебристый
Класс сушки А
Класс мойки А

Преимущества
Загрузка 1/2 да

Особенности
Количество положений средней корзины 2
Количество разбрызгивателе й2
Полка для чашек да
Регулируемая по высоте средняя корзина да / ручной способ
Складные держатели тарелок да
Съемные разбрызгиватели да
Тип корзины для столовых приборов цельная
Фильтр тонкой и грубой очистки да
Длина сетевого шнура 150 см

Программы
90 мин да
ECO да
Авто да
Быстрая да, 15 мин, 30 мин
Интенсивная да

Безопасность
Защита от протечек частичная

Дополнительные функции
Индикатор отсутствия соли и ополаскивател яда
Использование средств 3 в 1 да
Настройка дозировки ополаскивателя да
Настройка расхода соли да
Отображение выбранной программы да
Отсрочка старта, ч 1-24

Энергоэффективность
Потребление воды, л 9
Потребление электроэнергии, кВт/ч 0,69
Класс энергопотребления A++

Установка
Допустимый вес фасада, кг 3,5-5
Мощность подключения, кВт 2,1
Размер ниши для встраивания (ВхШхГ), мм 820х450х580

Функции
Самодиагностика неисправностей да

Комплектация
Воронка для соли да
Монтажный комплект да
Шланг заливной/сливной да

Тип установки ПММ Встраиваемая
Тип посудомоечной машины Узкая
Тип управления Электронный
Третий лоток Нет
Габариты ниши для встраивания (ВхШхГ) (см) 82х45х58
Гарантия 2 года
Габариты (ВхШхГ) (см) 81.5х45х55
Страна-производитель Китай
Вместимость (комплекты) 9
Количество программ 5
Предварительное ополаскивание Нет
Интенсивная мойка Есть
Быстрая мойка Есть
Деликатная мойка Нет
Авто-программа Есть
Автоматика "3 в 1" Есть
Дисплей Есть
Индикатор наличия ополаскивателя Есть
Индикатор наличия соли Есть
Половинная загрузка Есть
Класс энергопотребления / мойки / сушки A++/A/A
Уровень шума (дБ) 52
Сигнал завершения работы Нет
Тип сушки Конденсационная
Крепление фасадов Жесткое
Артикул производителя 76620
Луч на полу Нет
Автоматическое открывание дверцы Нет
Таймер Есть
Защита от детей Нет
Производитель Monsher
Ассортимент Интернет
Купить в один клик
Для оформления заказа укажите ваш номер телефона.
Наш менеджер свяжется с вами для получения деталей по заказу.
Сравнить товары
×