Встраиваемая техника для кухни по оптовым ценам

Машины посудомоечные

Smeg ST4522DIN
Арт: ST4522DIN
Скидка 10% на посудомоечные машины SMEG
Акция
Розничная цена
75 990 р.
В наличии
Склады
Склад (1)
В корзину
Полностью встраиваемая посудомоечная машина
SMEG ST4522DIN

Полностью встроенная посудомоечная машина на 45 см сочетает в себе компактный дизайн и высокую производительность, обеспечивая отличные результаты мытья даже в ограниченном пространстве.

Характеристики

Количество комплектов посуды: 9
Коммерческая высота: 82 см
Коммерческая ширина: 45 см
Мебельный фасад: Не поставляется
Семейство продуктов: Посудомоечная машина
Установка: Полностью интегрированная встраиваемая

Эстетика

Отделка: Черный глянцевый
Тип дверцы: Гальванизированный (оцинкованный)
Цвет кнопок: Черный
Цвет светодиодного дисплея: Белый
Цвет фронтальной панели: Черный
Цвет: Черный
Эстетика: Универсальный

Программы
Количество программ: 6
Авто 50°-60°: Да
Замачивание: Да
Программа самоочистки: Да
Смешанная 60°: Да
Экономичный: Да
Экспресс 50°: Да
Температура мойки: 50, 60, 70 °C

Технические характеристики
Автоматическое выключение: Да
Водоснабжение: Одинарное; / холодная/ горячая вода максимум 60°C - экономия энергии с горячей водой до 35%
Дисплей: отсрочка старта, Индикация времени программы, Потребление
Защита от пара: Пластиковая
Индикатор вкл. /выкл.: Да
Индикатор отсутствия ополаскивателя: Световая индикация
Индикатор отсутствия соли: Световая индикация
Индикация окончания цикла: Акустический сигнал
Максимальная жесткость воды: 90°fH; / 50°dH
Материал чаши: Нержавеющая сталь
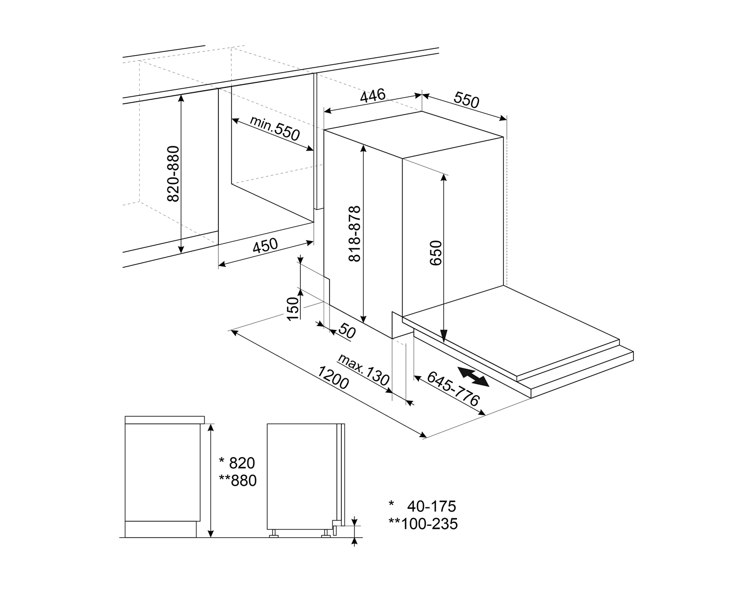
Мин. и максимальная высота цоколя: 40 - 175 мм
Минимальный и максимальный вес фасада: 2 - 7,5 кг
Мотор: Инвертор
Петли: Самобалансировка, слайдерное крепление, Петли для Гибкого монтажа под кухни с разным цоколем
Регулировка задних ножек с фронта: Да
Регулируемые по высоте ножки: 6 см, с 820 до 880 мм
Сенсор чистоты воды: Да
Система защиты от протечек: Полная Защита от протечек
Система мойки: Стандартный
Система открывания дверцы: Да
Система сушки: Конденсационная сушка с системой автоматического открывания дверцы "Ассистент сушки" в конце цикла
Скрытый нагревательный элемент: Да
Смягчитель воды: Электронная регулировка
Управление: Сенсорное управление
Фильтр: Нержавеющая сталь

Корзины
Верхняя корзина, регулируемая по высоте: На 2 уровня (4 см)
Верхняя корзина: С фиксированными держателями
Количество корзин: 2
Корзина для столовых приборов: Да
Максимальный размер посуды, загружаемой в верхнюю корзину (см): 20,0 см
Максимальный размер посуды, загружаемой в нижнюю корзину (см): 31,5 см
Нижняя корзина с системой мягких держателей: Да
Нижняя корзина: С фиксированными держателями
Ручка: Пластиковая на верхней и нижней корзинах
Цвет внутренних компонентов: Серый
Цвет компонентов корзин: Серый
Цвет корзин: Серый

Опции
Опция Стерилизация: Да
Отсрочка включения: 3 часа

Электрическое подключение

Длина электрического кабеля: 150 см
Напряжение: 220-240 В
Номинальная мощность: 1950 Вт
Сила тока: 10 A
Тип подключения: Однофазное
Тип электрической вилки: Европейская вилка для переменного тока
Частота тока: 50 Гц

Производительность / Энергопотребление - НОВЫЙ регламент
Загрузка, комплектов: 9
Излучение воздушного шума (фаза вращения): 44 дБ(A) re 1пВт
Индекс энергоэффективности (EEI): 49.8
Класс эмиссии воздушного акустического шума: В
Класс энергоэффективности: D
Продолжительность цикла: 4:00 h:min

Атрибуты функций
Уровень шума: 40 - 44 dB(A)

Логистическая информация
Аксессуары в комплекте: Воронка для соли
Вес брутто (кг): 32.000 кг
Вес нетто (кг): 30.600 кг
Высота упаковки (мм): 870 мм
Глубина упаковки (мм): 685 мм
Максимальное количество для штабелирования: 4
Размеры изделия (В х Ш х Г) мм: 818x446x550 mm
Размеры упаковки (мм): 870x490x685 mm
Страна происхождения: PL
Тип упаковки: Термоусадочная пленка
Ширина упаковки (мм): 490 мм
Тип установки ПММ Встраиваемая
Тип посудомоечной машины Узкая
Тип управления Электронный
Третий лоток Нет
Габариты ниши для встраивания (ВхШхГ) (см) 82-88х45х55
Гарантия 2 года
Габариты (ВхШхГ) (см) 81.8-87.8х44.6х55
Страна-производитель Италия
Вместимость (комплекты) 9
Количество программ 6
Предварительное ополаскивание Есть
Быстрая мойка Есть
Авто-программа Есть
Автоматика "3 в 1" Есть
Дисплей Есть
Индикатор наличия ополаскивателя Есть
Индикатор наличия соли Есть
Защита от протечек Есть
Уровень шума (дБ) 44
Сигнал завершения работы Акустический
Тип сушки Конденсационная
Крепление фасадов Слайдерное
Артикул производителя ST4522DIN
Автоматическое открывание дверцы Есть
Таймер Есть
Защита от детей Нет
Производитель Smeg
Ассортимент Кухонный
Цвет Черный
Купить в один клик
Для оформления заказа укажите ваш номер телефона.
Наш менеджер свяжется с вами для получения деталей по заказу.
Сравнить товары
×